Denah rumah 6×7 2 lantai – Aku sering membayangkan punya rumah mungil yang tetap nyaman dan fungsional, walau hanya berukuran 6×7 meter. Kalau lahan terbatas, membuat lantai tambahan adalah solusi agar ruang tidak terasa sempit.
Konsep rumah minimalis dua lantai seperti ini banyak diminati pasangan muda dan keluarga kecil karena lahan di kota makin terbatas setiap tahun. Sebagai arsitek, aku merasa merancang rumah di lahan sempit justru menantang dan seru.
Yuk kita mulai bahas ide denah dan desain minimalisnya!
Kelebihan Desain Rumah 6×7 2 Lantai

Kelebihan desain rumah 6×7 2 lantai ini bikin rumah mungil terasa sangat praktis dan nyaman. Ada beberapa hal menarik yang bisa jadi pertimbangan:
-
Efisiensi lahan: Dengan ukuran terbatas 6×7 meter, rumah ini memaksimalkan penggunaan setiap meter lahan. Membangun ke atas (dua lantai) memastikan semua ruang fungsional muat, mulai dari ruang keluarga hingga kamar tidur.
-
Biaya lebih terkontrol: Lahan kecil berarti material bangunan yang dibutuhkan relatif lebih sedikit dibanding rumah besar. Desain minimalis juga cenderung sederhana sehingga investasi pembangunan bisa lebih ringan.
-
Perawatan mudah: Area yang tidak terlalu luas membuat merawat rumah jadi lebih sederhana. Membersihkan bagian dalam maupun luar rumah lebih cepat, waktu luang bisa digunakan untuk hal lain.
-
Hemat energi: Ruangan yang kompak lebih efisien dalam penggunaan listrik, AC, atau pemanas ruangan. Kamu pun bisa lebih mudah menjaga suhu rumah tetap nyaman tanpa harus menyalakan banyak alat sekaligus.
-
Ruang lebih intim: Ukuran rumah yang kecil menciptakan nuansa hangat dan kekeluargaan. Setiap anggota keluarga berada dekat satu sama lain, sehingga komunikasi dan kebersamaan jadi lebih mudah.
-
Tampilan minimalis modern: Desain rumah minimalis 6×7 yang kekinian membuat rumah tetap tampil rapi dan elegan. Sentuhan warna netral dan aksen sederhana memberikan kesan luas dan tenang, tanpa ornamen berlebihan.
Simak Juga : Denah rumah 8×10 2 kamar
Inspirasi Denah Rumah dan Tata Letak Ideal
Memiliki rumah dengan ukuran 6×7 meter bukan berarti Anda tidak bisa memiliki hunian yang nyaman dan fungsional. Kunci utamanya adalah pada pembagian ruang dan tata letak yang cerdas. Berikut adalah beberapa inspirasi denah rumah 6×7 dengan berbagai konfigurasi yang bisa Anda jadikan referensi:
Denah Rumah 6×7 1 Lantai

Untuk rumah 1 lantai dengan ukuran 6×7 meter, efisiensi ruang adalah segalanya. Konsep open plan atau ruang terbuka tanpa sekat adalah pilihan yang sangat tepat. Dengan menggabungkan ruang tamu, ruang keluarga, dan dapur dalam satu area, rumah akan terasa lebih luas dan lapang.
Tata Letak Ideal:
- Teras Depan: Sediakan teras kecil di bagian depan rumah untuk area transisi sebelum masuk ke dalam rumah.
- Ruang Tamu dan Keluarga: Tempatkan di area paling depan setelah pintu masuk. Gunakan furnitur multifungsi seperti sofa bed untuk menghemat ruang.
- Dapur dan Ruang Makan: Letakkan di bagian belakang rumah dengan desain linear atau letter L untuk memaksimalkan ruang.
- Kamar Tidur: Anda bisa membuat 1 atau 2 kamar tidur. Jika 2 kamar, letakkan keduanya di satu sisi rumah untuk memisahkan area privat dan publik.
- Kamar Mandi: Posisikan di antara kedua kamar tidur atau di dekat area dapur untuk efisiensi instalasi pipa air.
Simak Juga : Desain rumah mungil sederhana minimalis
Denah Rumah 6×7 2 Kamar Tidur

Denah rumah 6×7 dengan 2 kamar tidur sangat ideal untuk pasangan muda atau keluarga kecil. Tata letaknya bisa diatur agar tetap nyaman dan tidak terasa sempit.
Tata Letak Ideal:
- Konsep Terbuka: Terapkan konsep ruang terbuka untuk area umum seperti ruang tamu, ruang makan, dan dapur.
- Posisi Kamar Tidur: Tempatkan kedua kamar tidur di bagian belakang rumah untuk memberikan privasi lebih.
- Pencahayaan Optimal: Manfaatkan jendela besar di bagian depan dan belakang rumah untuk memaksimalkan masuknya cahaya alami.
- Furnitur Minimalis: Pilih furnitur dengan desain yang ramping dan minimalis agar tidak memakan banyak ruang.
Simak Juga : Denah rumah 2 lantai
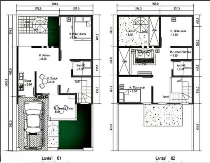
Denah Rumah 6×7 2 Lantai

Dengan membangun rumah 2 lantai, Anda bisa memiliki lebih banyak ruang untuk berbagai kebutuhan. Pembagian zona antara area publik dan privat pun menjadi lebih mudah.
Tata Letak Ideal:
- Lantai 1 (Area Publik):
- Ruang Tamu dan Keluarga: Ditempatkan di bagian depan.
- Dapur dan Ruang Makan: Berada di bagian belakang dengan akses ke taman kecil jika memungkinkan.
- 1 Kamar Mandi: Untuk tamu dan kebutuhan sehari-hari.
- Lantai 2 (Area Privat):
- Kamar Tidur Utama: Dengan ukuran yang lebih luas dan possibly dengan balkon kecil.
- Kamar Tidur Anak: Disesuaikan dengan kebutuhan.
- 1 Kamar Mandi: Untuk digunakan bersama di lantai 2.
- Area Kerja atau Ruang Santai Kecil: Manfaatkan sisa ruang di dekat tangga.

Simak Juga : Denah Rumah 5×7
Denah Rumah 6×7 3 Kamar Tidur

Memiliki 3 kamar tidur di rumah 6×7 meter memang menjadi tantangan tersendiri, namun bukan tidak mungkin. Kuncinya adalah dengan memanfaatkan setiap jengkal ruang secara efisien.
Tata Letak Ideal (2 Lantai):
- Lantai 1:
- 1 Kamar Tidur: Bisa difungsikan sebagai kamar tamu atau kamar untuk anggota keluarga yang sudah lanjut usia.
- Ruang Tamu, Dapur, dan Ruang Makan: Dalam konsep open plan.
- 1 Kamar Mandi.
- Lantai 2:
- 2 Kamar Tidur: Untuk kamar utama dan kamar anak.
- 1 Kamar Mandi.
- Balkon Kecil: Sebagai area untuk bersantai.
Simak Juga : Rumah Type 45 72
Denah Rumah 6×7 4 Kamar Tidur

Untuk mendapatkan 4 kamar tidur di rumah 6×7, Anda perlu memaksimalkan bangunan secara vertikal, bahkan mungkin dengan konsep split level atau mezanin.
Tata Letak Ideal (2 Lantai atau lebih):
- Lantai 1:
- 1 Kamar Tidur.
- Ruang Tamu dan Dapur.
- 1 Kamar Mandi.
- Lantai 2:
- 3 Kamar Tidur: Dengan ukuran yang lebih kompak.
- 1 Kamar Mandi.
- Manfaatkan Area Tangga: Gunakan area di bawah tangga sebagai ruang penyimpanan.
- Konsep Mezanin: Anda juga bisa menambahkan lantai mezanin di atas ruang keluarga sebagai tambahan ruang serbaguna yang bisa diubah menjadi kamar tidur.
Simak Juga : Rumah kaca minimalis modern
Inspirasi Desain Interior dan Eksterior

Untuk interior, aku sarankan gunakan warna terang agar ruangan terasa lebih lapang. Furnitur minimalis dan multifungsi sangat membantu di rumah sempit. Misalnya, sofa mungil dan meja makan kompak, serta rak dinding untuk menyimpan barang tanpa mengurangi area lantai.
Cahaya alami bisa dioptimalkan dengan jendela besar di ruang tamu atau ventilasi yang cukup, membuat rumah jadi cerah dan segar. Untuk dekorasi, jangan berlebihan; pilih beberapa hiasan favorit saja seperti bantal berwarna cerah, vas bunga kecil, atau lukisan minimalis agar terlihat menarik namun tetap rapi.

Di contoh denah di atas, terlihat area taman kecil di depan rumah yang membuat eksterior lebih asri. Kehadiran taman membuat suasana rumah jadi sejuk dan ramah alam sejak pertama kali melangkah masuk. Kamu bisa menaruh beberapa pot tanaman atau membuat teras mungil agar terkesan homey.
Dengan sedikit sentuhan hijau dan desain eksterior sederhana (misalnya cat dinding netral dan atap datar atau miring ringan), rumah minimalis 6×7 terlihat lebih hidup walau lahan terbatas. Jangan lupa atur pencahayaan eksterior yang cukup agar rumah cantik saat malam hari juga!
Simak Juga : Denah rumah 7×7 2 kamar
Tips Membangun Rumah Dua Lantai di Lahan Terbatas

Beberapa tips membangun rumah dua lantai di lahan sempit 6×7 meter bisa kamu terapkan:
-
Rencanakan dengan matang: Diskusikan kebutuhan ruang (jumlah kamar, ruang keluarga, dapur, dsb) dengan arsitek atau ahli bangunan. Perencanaan sejak awal yang matang akan menghindarkan masalah saat pengerjaan, seperti salah dimensi atau pemborosan material.
-
Pondasi kokoh: Karena rumah akan bertingkat, pastikan pondasi dibuat kuat dan sesuai standar. Pondasi beton yang baik dan struktur bangunan yang kokoh penting untuk keamanan, terutama jika suatu saat keluarga bertambah dan perlu penambahan ruangan di atas.
-
Desain ruang terbuka: Hindari banyak sekat yang memakan tempat. Menggabungkan ruang tamu, ruang makan, dan dapur dalam satu area (open plan) dapat membuat interior terasa lebih luas. Sebaliknya, sekat minimal (misalnya partisi ringan atau lemari pembatas) bisa digunakan jika benar-benar dibutuhkan.

-
Furniture multifungsi: Gunakan perabot dua fungsi agar ruang tidak terbuang sia-sia. Misalnya sofa bed atau kursi lipat, serta meja dengan laci penyimpanan. Lemari built-in dari lantai hingga plafon sangat membantu menyimpan barang tanpa memakan banyak ruang.
-
Ciptakan area hijau: Sisakan sedikit lahan untuk taman atau pot tanaman, walau di depan atau samping rumah. Kehadiran tanaman hijau tidak hanya mempercantik, tapi juga memberikan rasa segar dan alami pada hunian. Lahan kecil sekali pun bisa dibuat vertical garden atau kebun gantung agar tetap ada ruang terbuka hijau.
-
Pertimbangkan ventilasi dan pencahayaan: Pastikan rumah mendapat cukup cahaya alami dan sirkulasi udara. Posisikan jendela terutama di sisi timur atau selatan untuk cahaya pagi yang baik. Ventilasi silang dan jendela lebar dapat mengurangi penggunaan lampu dan pendingin ruangan, sekaligus menjaga udara tetap segar.
Simak Juga : Denah rumah 8×9
Kenapa Cocok untuk Keluarga Kecil dan Pasangan Muda

Ukuran rumah 6×7 dua lantai ini banyak cocok untuk keluarga kecil atau pasangan muda karena beberapa alasan:
-
Cukup untuk keluarga baru: Denah 6×7 dua lantai biasanya memiliki dua kamar tidur, pas buat orang tua dan satu anak. Tidak terlalu besar tapi juga tidak sesak – ideal untuk keluarga kecil atau pasangan yang baru menikah.
-
Biaya lebih terjangkau: Bangun rumah kecil berarti biaya pembangunan lebih ringan. Pasangan muda dengan budget terbatas bisa lebih mudah mewujudkan rumah idaman tanpa harus mengeluarkan biaya setinggi rumah besar.
-
Perawatan praktis: Area rumah yang tidak besar membuat pekerjaan bersih-bersih lebih cepat selesai. Pasangan yang sibuk tak perlu menguras waktu berhari-hari hanya untuk membersihkan setiap sudut rumah.
-
Lingkungan ramah: Jejak rumah kecil lebih hemat sumber daya. Selain lebih hemat listrik (ruangan kecil lebih cepat dingin atau hangat), pemakaian material bangunan yang sedikit ikut memikirkan lingkungan. Rumah kompak begini cocok bagi pasangan muda yang peduli kelestarian alam.
-
Hadirkan kebersamaan: Ukuran rumah yang kompak justru membuat suasana lebih akrab. Anggota keluarga berada dekat satu sama lain, sehingga kebersamaan dan komunikasi lebih mudah terjaga.
-
Potensi pengembangan: Jika suatu saat keluarga bertambah, ruang di rumah 6×7 bisa dimaksimalkan. Misalnya, menambah loteng atau atap yang bisa diakses sebagai ruang penyimpanan ekstra. Dengan desain awal yang fleksibel, rumah mungil ini tetap bisa tumbuh mengikuti kebutuhan keluarga.

Simak Juga : Denah rumah 7×15 3 kamar
Wujudkan Rumah Impianmu dengan Masterpiece Arsitek
Secara keseluruhan, rumah 6×7 dua lantai ini benar-benar ideal buat keluarga kecil dan pasangan muda. Kalau kamu tertarik mewujudkan rumah minimalis seperti ini, kamu nggak perlu bingung mulai dari mana.

Masterpiece Arsitek, perusahaan jasa arsitek di Kediri, siap membantu merancang dan mewujudkan rumah impianmu mulai dari konsep hingga konstruksi. Kami berpengalaman menata ruang dengan lahan terbatas serta mendesain struktur bangunan yang kokoh.

Masterpiece Arsitek melayani klien di seluruh Indonesia bahkan Asia, jadi tidak perlu ragu. Yuk, konsultasikan ide dan kebutuhanmu ke Masterpiece Arsitek sekarang, agar rumah mungilmu jadi kenyataan!
Simak Juga : Denah Rumah 6×10
FAQ (Frequently Asked Questions)
Apakah mungkin membangun rumah 6×7 dengan 3 kamar tidur di 1 lantai?
Meskipun sangat menantang, hal ini mungkin dilakukan dengan mengorbankan luas setiap ruangan. Anda perlu membuat desain yang sangat efisien dengan furnitur yang sangat kompak. Namun, untuk kenyamanan, disarankan untuk membangun 2 lantai.
Bagaimana cara membuat rumah 6×7 terasa lebih luas?
Gunakan cat berwarna terang seperti putih, krem, atau abu-abu muda. Terapkan konsep open plan untuk mengurangi sekat antar ruangan. Gunakan cermin besar untuk menciptakan ilusi ruang yang lebih luas. Maksimalkan pencahayaan alami dengan jendela besar. Pilih furnitur multifungsi dan berdesain minimalis.
Berapa perkiraan biaya membangun rumah 6×7 2 lantai?
Biaya pembangunan sangat bervariasi tergantung pada lokasi, kualitas material, dan upah tenaga kerja. Namun, sebagai gambaran kasar, Anda bisa menyiapkan dana mulai dari Rp150 juta hingga Rp300 juta atau lebih.
Apakah rumah 6×7 cocok untuk keluarga dengan lebih dari 2 anak?
Rumah 6×7 bisa menjadi pilihan untuk keluarga dengan lebih dari 2 anak jika dibangun 2 lantai dengan 3 atau 4 kamar tidur. Namun, diperlukan penataan ruang yang sangat cermat dan kreatif agar semua kebutuhan anggota keluarga dapat terpenuhi dengan baik.
Bagaimana cara memaksimalkan penyimpanan di rumah 6×7?
Manfaatkan ruang vertikal dengan membuat rak dinding atau lemari hingga ke langit-langit. Gunakan furnitur dengan ruang penyimpanan tersembunyi seperti tempat tidur dengan laci di bawahnya atau meja kopi dengan rak. Area di bawah tangga juga bisa diubah menjadi lemari atau rak buku.
Berapa kamar tidur yang ideal untuk rumah 6×7 2 lantai?
Anda bisa memaksimalkan hingga tiga kamar tidur. Konfigurasi terbaik adalah menempatkan satu kamar tidur standar di lantai bawah untuk tamu atau lansia, dan dua kamar tidur (utama dan anak) di lantai atas demi privasi yang lebih terjaga.
Berapa kisaran biaya bangun rumah ukuran ini?
Estimasi biaya berkisar antara Rp 280 juta hingga Rp 400 juta untuk bangunan seluas +/- 80m². Angka ini bisa lebih rendah jika Anda menerapkan konsep rumah tumbuh atau gaya industrial unfinished yang meminimalkan biaya finishing cat dan keramik.
Apakah masih bisa punya carport mobil?
Sangat bisa. Alokasikan area 3 x 4,5 meter di depan untuk mobil jenis city car. Agar lahan tidak terbuang, area di atas carport sebaiknya di-dak beton untuk dijadikan balkon atau perluasan kamar tidur lantai dua.
Bagaimana cara bikin ruangan sempit terasa lega?
Terapkan konsep open plan dengan menggabungkan ruang tamu, ruang keluarga, dan dapur tanpa sekat tembok. Padukan dengan warna cat putih terang, plafon tinggi, dan penggunaan cermin besar di dinding untuk memantulkan cahaya dan menciptakan ilusi luas.
Model tangga apa yang paling hemat tempat?
Gunakan tangga model huruf U atau L-shape di sudut ruangan. Model ini paling efisien karena ruang kosong di bawah tangganya bisa disulap menjadi kamar mandi tamu (powder room) atau lemari penyimpanan (gudang), sehingga tidak ada sudut yang mubazir.
Di mana posisi dapur yang tepat untuk lahan 6×7?
Posisi dapur terbaik ada di bagian belakang menyatu dengan ruang makan (model linear atau L-shape). Hindari dapur tertutup penuh dinding. Gunakan meja makan lipat atau meja bar minimalis sebagai pembatas imajiner agar sirkulasi gerak tetap nyaman.
Bagaimana mengatur sirkulasi udara agar rumah tidak pengap?
Wajib membuat void (lubang antar lantai) kecil atau skylight di area tengah atau belakang rumah. Teknik ini menciptakan efek cerobong asap (stack effect) yang membuang udara panas ke atas, menjaga rumah tetap sejuk meski tanpa AC terus-menerus.
Di mana menempatkan area cuci jemur?
Tempatkan area laundry di lantai 2 bagian belakang atau di area dak teras atas. Posisi ini memastikan jemuran mendapat sinar matahari maksimal, menjaga privasi, dan tidak merusak pemandangan fasad depan rumah.
Harga & Biaya Jasa Arsitek Rumah Bangunan
Ingin mewujudkan rumah impian Anda? Nikmati promo diskon 50% dari kami. Promo ini akan berakhir pada

Masterpiece Arsitek adalah perusahaan arsitektur yang melayani jasa desain rumah mewah dan villa terbaik di Indonesia juga layanan desain interior ruang kerja rumah