Denah rumah 7×12 memanjang adalah desain rumah yang memiliki dimensi 7 meter untuk lebar depan dan 12 meter untuk panjangnya. Desain ini memanfaatkan lahan yang merata ke belakang, memberikan kesan ruang yang lebih panjang.
Keunikan dari denah ini adalah kemampuannya untuk memberikan ruang yang luas dan terbuka, cocok untuk keluarga yang ingin menghadirkan nuansa estetis yang canggih dan nyaman.
Dalam artikel ini, kita akan menjelajahi inspirasi menarik dari denah rumah 7×12 memanjang. Tujuannya adalah untuk membantu Anda mengoptimalkan penggunaan ruang, memilih desain yang tepat, dan menghadirkan estetika secara keseluruhan.
Dengan pemahaman mendalam tentang tata letak ini, Anda akan mendapatkan ide bagaimana menciptakan rumah impian yang fungsional dan indah.
Tips Mendesain Denah Rumah 7×12 Memanjang

Merancang denah rumah 7×12 memanjang memang memerlukan kreativitas dan perencanaan yang matang. Di bawah ini, kami akan berbagi beberapa tips yang akan sangat membantu Anda dalam membuat rumah Anda terasa nyaman dan estetis.
Manfaatkan Ruang Tengah
Ruang tengah sering menjadi jantung dari rumah, terutama pada denah rumah memanjang seperti 7×12 ini. Ruang ini bisa dimanfaatkan untuk berbagai fungsi, seperti ruang keluarga, ruang makan, atau bahkan area kerja yang nyaman. Karena bentuk rumah yang memanjang, Anda dapat mengatur ruang tengah agar terhubung dengan area lain melalui koridor atau ruang terbuka tanpa dinding pembatas yang banyak.
- Ruang Terbuka: Gunakan konsep open space untuk memberikan kesan luas dan menyatukan berbagai fungsi dalam satu area.
- Furnitur Multifungsi: Pilih furnitur yang bisa digunakan untuk berbagai keperluan, misalnya meja makan yang juga berfungsi sebagai meja kerja.
Pencahayaan dan Sirkulasi Udara
Pencahayaan dan sirkulasi udara adalah dua aspek penting dalam desain rumah yang berdampak langsung pada kenyamanan penghuni. Rumah dengan denah 7×12 yang memanjang bisa mendapatkan pencahayaan alami dan sirkulasi udara yang baik jika dirancang dengan tepat.
- Jendela Besar: Gunakan jendela besar atau pintu geser yang memungkinkan cahaya alami masuk ke dalam rumah. Selain mempercantik, juga dapat menghemat energi.
- Ventilasi Silang: Pastikan ada ventilasi silang yang baik untuk memastikan udara segar dapat beredar dengan lancar di seluruh ruangan.
- Penempatan Tanaman: Tambahkan tanaman indoor yang tidak hanya membantu sirkulasi udara, tetapi juga menambah elemen estetika.
Simak Juga : Desain rumah 6×7 2 kamar
Gunakan Konsep Minimalis Modern

Konsep minimalis modern sangat cocok untuk rumah yang memiliki denah memanjang. Filosofi minimalis menekankan pada penggunaan ruang yang efisien dan elemen dekoratif yang fungsional.
- Warna Netral: Terapkan palet warna netral untuk memberikan kesan ruang yang luas dan bersih.
- Desain Sederhana: Kurangi elemen dekoratif yang berlebihan. Pilih aksesori yang sederhana namun menonjolkan karakter rumah Anda.
- Sistem Penyimpanan Tersembunyi: Manfaatkan sistem penyimpanan tersembunyi guna menjaga tata rumah tetap rapi dan terorganisir.
Pemisahan Fungsi Ruangan
Pemisahan fungsi ruangan yang jelas namun tetap terintegrasi adalah kunci untuk kenyamanan di rumah dengan denah 7×12 memanjang. Hal ini bisa dilakukan tanpa harus menambah banyak dinding.
- Pembatas Ruang Non-Permanen: Gunakan rak buku, panel kayu, atau pintu geser sebagai pembatas antar fungsi ruangan yang fleksibel.
- Karpet sebagai Pembatas Visual: Karpet dengan pola atau tekstur tertentu bisa berfungsi sebagai pembatas visual antara ruang satu dengan yang lain tanpa harus menggunakan dinding.
Simak Juga : Denah rumah 7×7 1 lantai
Karakteristik Rumah 7×12 Memanjang

Memahami karakteristik dari denah rumah 7×12 memanjang dapat membantu Anda dalam merancang dan mengoptimalkan setiap ruangan.
Ukuran dan Tata Letak Ideal
Denah rumah berukuran 7×12 meter menawarkan keterbatasan sekaligus potensi untuk perencanaan yang cermat. Dengan ukuran ini, tata letak yang ideal memerlukan kreativitas agar setiap sudut dapat dimanfaatkan semaksimal mungkin.
- Ruang Terbuka di Depan dan Belakang: Sebaiknya sisakan sedikit ruang terbuka di depan dan belakang untuk taman atau halaman kecil yang bisa difungsikan sebagai area bersantai.
- Penempatan Ruang Secara Fungsional: Buatlah denah yang menempatkan ruang privat seperti kamar tidur di bagian belakang dan ruang publik seperti ruang tamu di bagian depan rumah agar lebih mudah diakses.
Simak Juga : Denah Rumah 9×9 3 Kamar tidur
Kelebihan Rumah Memanjang

Rumah memanjang seperti denah 7×12 memiliki sejumlah kelebihan yang bisa dimanfaatkan untuk menciptakan hunian yang nyaman dan menyenangkan.
- Pemanfaatan Lahan yang Efisien: Dengan desain memanjang, lahan dapat dimanfaatkan secara lebih efisien dibandingkan dengan denah yang melebar.
- Privasi Lebih Tinggi: Karena umumnya bentuk ini mengharuskan letak kamar tidur dan ruangan privat lainnya lebih jauh dari pintu utama, maka privasi dapat lebih terjaga.
- Estetika Unik: Rumah memanjang memberikan tampilan unik dari bentuk yang tidak biasa, sehingga bisa menjadi daya tarik tersendiri.
Tantangan Desain
Namun, ada juga tantangan dalam mendesain rumah dengan denah 7×12 yang memanjang. Tantangan ini perlu diatasi dengan solusi yang tepat agar tidak mengganggu kenyamanan rumah.
- Cahaya dan Ventilasi Terbatas: Salah satu tantangan umum adalah keterbatasan pencahayaan alami, terutama untuk ruangan yang berada di tengah.
- Sirkulasi Ruang: Pengaturan ruang yang tidak tepat bisa mengakibatkan sirkulasi yang kurang efisien, menyebabkan penghuni harus berjalan lebih jauh dari satu ruangan ke ruangan lain.
- Perasaan Tertutup: Karena bentuknya yang memanjang, jika tidak mendapatkan pencahayaan atau desain interior yang tepat, dapat menimbulkan perasaan tertutup atau sempit di bagian tengah rumah.
Untuk mengatasi tantangan ini, pastikan Anda berkonsultasi dengan arsitek atau desainer interior yang berpengalaman dalam menangani denah rumah memanjang. Mereka dapat memberikan solusi desain yang khas dan fungsional sesuai dengan kebutuhan dan gaya hidup Anda.
Dengan mengikuti tips dan memahami karakteristik serta keuntungan dan tantangan dari desain rumah 7×12 memanjang, Anda dapat membangun rumah yang tidak hanya estetis, tetapi juga nyaman dan fungsional. Ingat, rumah adalah tempat Anda dan keluarga menghabiskan banyak waktu bersama, jadi buatlah seindah dan senyaman mungkin!
Simak Juga : Denah rumah 8×9 3 kamar
Keuntungan Desain Rumah Memanjang

Desain rumah memanjang, terutama dengan dimensi denah rumah 7×12, memiliki sejumlah keuntungan yang bisa menjadi solusi ideal bagi banyak keluarga. Mulai dari pemanfaatan lahan hingga ragam potensi estetika yang ditawarkan, mari kita bahas lebih lanjut.
Pemanfaatan Lahan Secara Efektif
Salah satu keuntungan utama dari desain rumah memanjang adalah kemampuannya untuk memanfaatkan lahan secara efektif. Dengan ukuran tanah yang terkadang terbatas, terutama di daerah perkotaan, rumah memanjang menawarkan solusi untuk mengoptimalkan setiap meter persegi yang ada.
- Ruang tamu dan dapur yang terintegrasi: Denah memanjang memungkinkan ruangan-ruangan inti seperti ruang tamu dan dapur untuk dijadikan satu, menciptakan kesan ruang yang lebih luas dan terbuka.
- Tata letak linear: Penempatan ruangan secara linear dari depan ke belakang memudahkan alur sirkulasi penghuni rumah dari satu ruangan ke ruangan lainnya.
Simak Juga : Denah rumah 2 lantai lengkap dengan tampak dan potongan
Kesesuaian dengan Area Perkotaan
Di area perkotaan, lahan yang tersedia untuk pembangunan rumah sering kali terbatas. Desain rumah memanjang seperti denah rumah 7×12 ini sangat cocok digunakan di kawasan perkotaan karena singkat dan kompak.
- Menghemat Ruang Tanah: Dengan desain memanjang, Anda dapat menghemat ruang tanah yang terbatas, tetap memberikan kesempatan untuk memiliki taman kecil di depan maupun di belakang rumah.
- Pengurangan Biaya Pembangunan: Denah yang lebih sederhana ini membuat pembangunan lebih hemat biaya. Komponen struktur bangunan bisa dimanfaatkan lebih maksimal sehingga anggaran bisa dialokasikan untuk kebutuhan lainnya.
Potensi Estetika yang Unik
Desain memanjang juga membuka peluang untuk menciptakan estetika unik yang berbeda dari rumah pada umumnya.
- Fleksibilitas Elemen Desain: Anda bisa bermain dengan berbagai elemen desain, mulai dari jendela besar di sepanjang dinding, hingga penataan pencahayaan yang kreatif untuk memberikan nuansa yang berbeda.
- Fasad yang Menarik: Desain memanjang bisa membuat fasad rumah tampak lebih modern dan stylish dengan garis-garis horizontal yang dominan dan material yang bisa dipilih sesuai selera.
Simak Juga : Denah rumah sederhana 3 kamar tidur
Inspirasi Denah Rumah 7×12 Memanjang

Untuk membantu Anda mendapatkan gambaran lebih konkret, mari kita simak beberapa inspirasi denah rumah 7×12 memanjang yang bisa dijadikan referensi untuk rumah impian Anda.
Denah Rumah 1 Lantai
Denah rumah 1 lantai dengan ukuran 7×12 bisa menjadi pilihan yang nyaman dan praktis bagi Anda yang ingin semuanya berada di satu tingkat.
- Ruang Terbuka yang Lapang: Dengan hanya satu lantai, Anda dapat mengatur ruangan tanpa partisi yang terlalu banyak, menciptakan ruang terbuka yang lapang.
- Maksimalkan Keseluruhan Lahan: Denah ini memanfaatkan seluruh lahan secara imbang dari depan hingga belakang, memberikan setiap ruangan akses mudah ke area luar, seperti teras atau taman belakang.
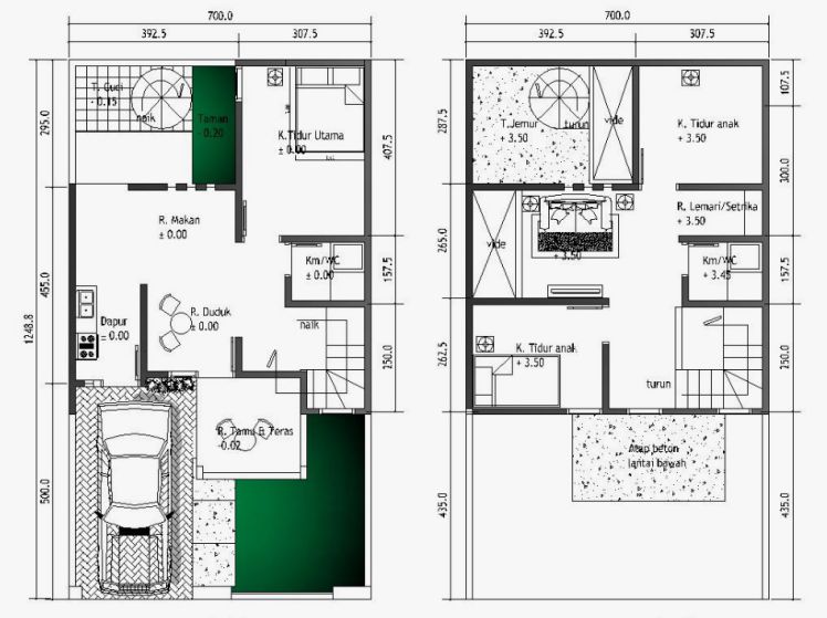
Denah Rumah 2 Lantai

Jika Anda memerlukan lebih banyak ruang, denah rumah 2 lantai memanjang menawarkan solusi ideal.
- Zona Terpisah untuk Privasi: Lantai atas dapat digunakan untuk kamar tidur dan ruang keluarga pribadi, sementara lantai bawah menjadi area publik seperti ruang tamu dan dapur.
- Pemanfaatan Tanah yang Lebih Efisien: Menambah lantai berarti Anda bisa memiliki luas bangunan lebih tanpa perlu memperbesar luas tanah, memaksimalkan fungsi setiap ruangan.
Denah Rumah dengan Ruang Multifungsi
Denah dengan ruang multifungsi akan sangat menguntungkan, terutama bagi Anda yang mencari efisiensi.
- Ruangan Serbaguna: Anda bisa merancang satu ruangan untuk digunakan sebagai ruang kerja di siang hari dan ruang tamu di malam hari.
- Meminimalisir Area yang Tidak Terpakai: Dengan desain fungsional, setiap sudut rumah bisa dimanfaatkan secara maksimal sehingga tidak ada area yang terbuang sia-sia.
Simak Juga : Denah Rumah 5×7
Denah Rumah 7×12 Memanjang 3 Kamar Tidur

Bagi keluarga yang lebih besar, denah dengan 3 kamar tidur pada rumah memanjang 7×12 dapat memberikan ruang yang cukup untuk setiap anggota keluarga.
- Kamar yang Optimal: Dengan denah memanjang, setiap kamar dapat dirancang agar tetap mendapatkan pencahayaan alami yang cukup serta sirkulasi udara yang baik.
- Penataan Ruangan yang Bijaksana: Tempatkan kamar tidur utama di bagian belakang untuk privasi lebih, sedangkan dua kamar anak bisa di tengah agar mudah diakses.
Dengan berbagai inspirasi denah rumah 7×12 memanjang ini, Anda diharapkan bisa mendapatkan ide yang cocok dan sesuai dengan kebutuhan serta gaya hidup. Mulai dari tata letak hanya satu tingkat yang sederhana hingga dua tingkat yang cenderung lebih kompleks, semuanya memiliki keunikan dan keunggulan masing-masing yang patut dipertimbangkan.
Dengan demikian, Anda bisa merancang rumah yang tidak hanya nyaman tapi juga estetis, menjadikannya tempat yang menyenangkan untuk ditinggali sehari-hari.
Simak Juga : Denah rumah 8×8 2 kamar
Rekomendasi Material dan Dekorasi

Membangun rumah yang nyaman dan estetis memerlukan perhatian pada pilihan material dan dekorasi. Memilih material yang tepat serta menyesuaikan dekorasi dapat meningkatkan kenyamanan dan daya tarik rumah Anda. Berikut adalah beberapa rekomendasi material dan dekorasi untuk denah rumah 7×12 memanjang.
Material Bangunan
Material bangunan menjadi bagian penting dari kualitas dan daya tahan rumah. Berikut beberapa rekomendasi material yang bisa Anda pertimbangkan:
- Bata Ringan: Bata ringan memiliki keunggulan dari segi kekuatan dan ringan sehingga menjadikannya pilihan ideal untuk konstruksi rumah. Selain itu, material ini juga memiliki sifat insulasi yang baik.
- Kayu Laminasi: Jika Anda mencari bahan yang ramah lingkungan dan estetis, kayu laminasi dapat menjadi pilihan. Selain memberikan nuansa alami, material ini juga tahan lama jika dirawat dengan baik.
- Kaca Tempered: Penggunaan kaca tempered pada jendela atau partisi memberikan kesan modern dan elegan. Kaca ini dikenal kuat serta aman jika pecah karena tidak menimbulkan pecahan tajam.
- Keramik atau Granit: Untuk lantai, pilih keramik dengan motif yang sesuai selera atau lantai granit untuk kesan lebih mewah. Kedua jenis material ini juga mudah dibersihkan.
Warna Interior dan Eksterior

Pemilihan warna yang tepat untuk interior dan eksterior dapat mempengaruhi suasana ruangan dan keseluruhan desain rumah. Berikut beberapa inspirasi warna yang sesuai:
- Interior: Untuk interior, pilih warna-warna netral seperti putih, abu-abu muda, atau krem. Warna-warna ini memberikan kesan ruangan yang lebih luas dan bersih. Tambahkan aksen warna cerah pada beberapa bagian rumah seperti bantal sofa atau karpet agar lebih hidup.
- Eksterior: Untuk eksterior, pertimbangkan penggunaan warna-warna bumi seperti coklat tua, hijau daun, atau biru laut. Warna-warna ini harmonis dengan lingkungan dan memberikan kesan alami.
- Konsep Warna Monokrom: Jika suka penampilan yang modern dan chic, gunakan tema warna monokrom. Kombinasi hitam putih atau abu-abu dengan sentuhan aksen seperti emas atau perak bisa membuat rumah terlihat sophisticated.
Dekorasi Fungsional
Menambahkan elemen dekorasi fungsional dapat meningkatkan estetika sekaligus kegunaan ruangan. Berikut beberapa ide yang bisa diterapkan:
- Rak Dinding: Gunakan rak dinding untuk memajang buku atau pajangan dekoratif. Rak ini tidak hanya mempercantik ruangan, tetapi juga membantu menghemat ruang.
- Tanaman Hias: Tambahkan beberapa tanaman hias indoor seperti monstera atau lidah mertua. Selain mempercantik, tanaman bisa meningkatkan kualitas udara di dalam rumah.
- Lampu Gantung: Pilih lampu gantung dengan desain menarik sebagai pusat perhatian di ruang tamu atau ruang makan. Fungsi lampu ini tidak hanya sebagai penerangan, tetapi juga elemen dekorasi utama.
- Furniture Multifungsi: Investasi pada furniture multifungsi seperti sofa bed atau meja dengan ruang penyimpanan tersembunyi bisa menjadi solusi penghematan ruang yang cerdas.
Simak Juga : Denah rumah 7×8 3 kamar tidur
Rekomendasi Jasa Arsitek Profesional untuk Denah Rumah 7×12 Memanjang
Membangun rumah impian dengan desain yang sempurna bukanlah pekerjaan mudah. Dalam proses ini, kehadiran jasa arsitek profesional sangat penting untuk mendukung perwujudan rumah yang Anda inginkan. Berikut rekomendasi jasa arsitek profesional untuk desain rumah 7×12 memanjang.
Pentingnya Jasa Arsitek Terbaik
Menggunakan jasa arsitek yang andal tidak hanya memberikan jaminan kualitas, tetapi juga memastikan bahwa segala aspek desain dan pembangunan rumah direncanakan dengan matang. Berikut alasannya:
- Desain yang Disesuaikan: Arsitek akan merancang denah dan desain sesuai dengan kebutuhan dan gaya hidup Anda. Anda akan mendapatkan rumah yang benar-benar mencerminkan kepribadian Anda.
- Efisiensi Anggaran: Arsitek berpengalaman mampu mengelola anggaran dengan efektif, menyesuaikan material dan desain tanpa mengorbankan kualitas.
- Pengurusan Izin: Mereka juga dapat membantu dalam proses pengurusan izin pembangunan, yang seringkali memakan waktu dan rumit.
- Inovasi dan Kreativitas: Arsitek memberikan ide-ide segar dan inovatif untuk menciptakan ruang yang estetis dan fungsional.
Masterpiece Arsitek – Jasa Arsitek Profesional

Salah satu rekomendasi untuk jasa arsitek profesional adalah Masterpiece Arsitek. Mereka dikenal karena kemampuan mereka dalam merancang rumah dengan berbagai style, termasuk desain rumah memanjang 7×12 yang unik dan personal.
- Pengalaman dan Keahlian: Masterpiece Arsitek memiliki tim berpengalaman yang telah menangani berbagai proyek dengan hasil memuaskan.
- Konsultasi Pribadi: Mereka menyediakan sesi konsultasi tatap muka atau virtual yang memungkinkan Anda mendiskusikan detail dan kebutuhan rumah Anda dengan lebih nyaman.
- Portofolio Beragam: Lihat portofolio mereka yang memamerkan desain rumah kontemporer hingga klasik untuk mendapat inspirasi lebih.
Keuntungan menggunakan Masterpiece Arsitek

Berbagai keuntungan bisa Anda dapatkan ketika menggunakan jasa dari Masterpiece Arsitek:
- Integrasi Konsep: Tim arsitek mereka mampu mengintegrasikan konsep modern dengan elemen lokal yang menghasilkan desain rumah yang unik dan harmonis.
- Komitmen terhadap Kualitas: Masterpiece Arsitek selalu memastikan penggunaan material berkualitas tinggi demi menciptakan bangunan yang kokoh dan tahan lama.
- Fleksibilitas Desain: Mereka menawarkan fleksibilitas dalam desain agar sesuai dengan preferensi dan kebutuhan spesifik klien.
Dengan pilihan jasa arsitek dan material yang tepat, impian memiliki rumah 7×12 memanjang yang estetis dan nyaman kini menjadi lebih mudah terwujud. Semoga rekomendasi ini bermanfaat untuk proyek rumah impian Anda!
Dalam merancang denah rumah 7×12 memanjang, penting untuk mempertimbangkan elemen estetika sekaligus fungsionalitas. Pemanfaatan setiap sudut ruang dapat meningkatkan kenyamanan dan keindahan rumah Anda. Cobalah beberapa tips berikut ini:
- Gunakan warna cerah untuk dinding, yang dapat membuat ruang terlihat lebih luas dan terbuka.
- Maksimalkan pencahayaan alami dengan memasang jendela besar di area strategis.
- Pilih furnitur multifungsi yang sesuai dengan kebutuhan dan gaya rumah Anda.
Dengan perencanaan yang matang, rumah memanjang yang mungkin terlihat sempit dapat berubah menjadi hunian yang penuh inspirasi dan kenyamanan.
Harga & Biaya Jasa Arsitek Rumah Bangunan
Ingin mewujudkan rumah impian Anda? Nikmati promo diskon 50% dari kami. Promo ini akan berakhir pada
Lana Juniantoro adalah seorang arsitek berbakat yang telah menyelesaikan pendidikan tinggi di bidang Teknik Arsitektur dengan gelar Sarjana Teknik (S.T.). Dengan pengalaman bertahun-tahun dalam industri arsitektur, Lana telah menunjukkan dedikasi dan keterampilan luar biasa dalam setiap proyek yang dikerjakan.